Rare brownstone duplex available October 1st, 2020 in the heart of Harlem on West 127th St. between 5th Ave. & Lenox Ave.

There are 3 units in this historical 4 story brownstone. The featured unit occupies 2 floors plus ample cellar storage space and a private landscaped garden with deck.

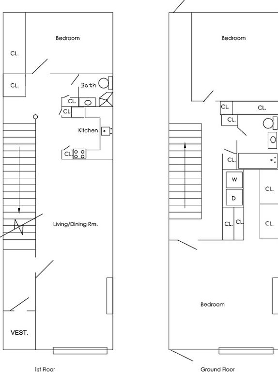
The 1200 sq. ft. home features 3 bedrooms and 2 baths. The parlor floor includes large living/ dining room, kitchen, 1 bedroom & 1 bathroom. The ground floor includes 2 bedrooms, 1 bathroom and a laundry closet with full size washer and dryer.

The home boasts hardwood floors, high ceilings, north and south exposures with plenty of sunlight. The home conveniently has 2 entrances, one on the parlor level and a second private ground floor entrance, both with video intercom security. The kitchen includes stainless steel appliances (microwave, stove, refrigerator, and dishwasher) with quartz countertops. There are 2 decorative fireplaces, plenty of closets, and a large cellar storage area.

Privacy, personal outdoor space, and ample square footage (for a home office, home gym, and/or storage) are all benefits of this beautiful home.

Rent $4500.00/ mo. Heat, hot water, and gas are included. One small pet is welcome.

No broker's fee. $20.00 Credit check fee & 1-month security deposit required

Qualified Applicants only. Minimum monthly gross household income $170,000.00.

*Home will be professionally sanitized prior to occupany (including new toilets seats)
CONTACT: Maylene Fortuna mfortunamgmt@gmail.com (347)-316-3755

Features include:

  • 1200 sq. ft. of living space, 560 sq. ft. private outdoor space, plus additional cellar storage
  • Landscaped rear yard (hostas, ferns, Japanese Maple, & hibiscus) with deck & 6 ft. cedar privacy fence
  • Rent includes heat, hot water, and cooking gas.
  • 1 Small pet welcome.
  • Two decorative fireplaces
  • 9 ft. + high ceilings on parlor level
  • Video intercom security system
  • Laundry with full size washer & dryer
  • Spacious 11 x 27 ft. living /dining area
  • 2 entrances including one private entrance
  • Hardwood floors
  • 12 closets
img

Floor Plan

img

Parlor Level- Kitchen Photo 1

img

Parlor Level- Kitchen Photo 2

img

Parlor Level- Kitchen Photo 3

img

Parlor Level- Kitchen Photo 4

img

Parlor Level- Hall facing South Photo 1

img

Parlor Level- Hall facing North Photo 2

img

Parlor Level- Hall Center Photo 3

img

Parlor Level- Bath 1

img

Parlor Level- Bedroom 1 Photo 1

img

Parlor Level- Bedroom 1 Photo 2

img

Parlor Level- Bedroom 1 Photo 3

img

Ground Floor- Steps up to Parlor Level

img

Ground Level- Bedroom 2 Photo 1

img

Ground Level- Bedroom 2 Photo 2

img

Ground Level- Bedroom 2 Photo 3

img

Ground Level- Hall

img

Ground Level- Laundry Closet

img

Ground Level- Bath 2

img

Ground Level- Bedroom 3 Photo 1

img

Ground Level- Bedroom 3 Photo 2

img

Ground Level- Exit to private garden